Casa en Venta
Barrio El Recodo Mz K, Maipú | Mendoza
Cochera
Metros Cubiertos
80.00 m2
Metros Totales
224 m2
Agendar una visita
Coordinar visitaOportunidad única, Obra Gruesa en Bº El Recodo Mz K, sobre terreno de 224 mts2 y 80 m2 cubiertos en dos plantas, brindando un espacio funcional, luminoso y cómodo para disfrutar.
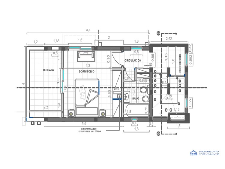
La propiedad cuenta con una excelente orientación, con frente al Este, y hermosas vistas desde balcón en Planta Alta hacia el Oeste.
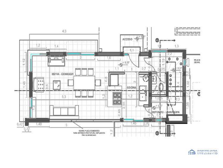
Este inmueble incluye en planta baja un amplio estar comedor, cocina proyectada con isla, toilette, lavandería cerrada. En planta alta sector de escritorio, baño instalado completo y dormitorio con balcón. Con la posibilidad de ampliación a un dormitorio más.
Además, dispone proyectada de una cochera semicubierta, la cual puede ser pasante, para mayor capacidad.
Cuenta con las conexiones de agua, cloacas y electricidad. Avance de obra mas de un 50%.
Excelente oportunidad para terminarla a gusto personal.
El barrio esta ubicado a pocos minutos de la plaza de Maipù, a metros de calle Ozamis, calle Boedo, acceso Sur, calle Paso y diferentes emprendimientos comerciales.
¡Llámenos para conocer más en detalle esta propiedad!
Tel: 2614177799
Email: danilo@stevanato.com.ar
Inmobiliaria Stevanato
www.stevanato.com.ar
Aire Acondicionado: No
Antigüedad: Estrenar
Apto Crédito Hipotecario: No
Cantidad de Ambientes: 2
Cloacas: Si
Cochera: 1
Financiación: No
Gas: Si
Luz Eléctrica: Si
Piscina: No
Superficie Cubierta m2: 80.00
Superficie Total m2: 224
Teléfono: No
Tiene Expensas: Si
Valor de Expensas: 40000
¿Aceptan Mascotas?: Si


















