Casa en Venta
Bº Lomas De Russell, Mz K, Maipú | Mendoza
Cochera
Metros Cubiertos
152.00 m2
Metros Totales
357 m2
Agendar una visita
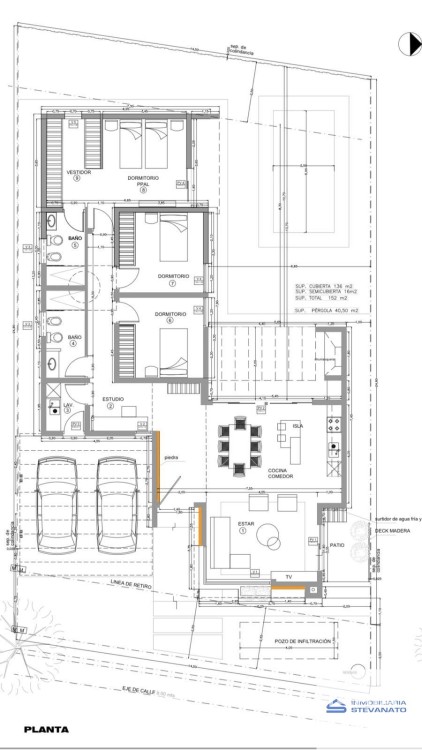
Coordinar visitaOfrecemos hermosa casa a estrenar, desarrollada en una sola planta, ubicada en el barrio privado Lomas de Russell en Maipú.
Esta propiedad ofrece un equilibrio perfecto de confort y estilo.
NO APTA CREDITO HIPOTECARIO.
La casa se compone de un hall de ingreso con pared interior revestida en piedra, cocina comedor amplia con espacio ideal para colocar una Isla Desayunador, Living Comedor, sector para escritorio, lavandería, baño instalado completo y tres dormitorios, de los cuales uno es un dormitorio en suite, con vestidor.
Cuenta con detalles de calidad como calefacción por losa radiante, carpintería de aluminio de color negra con doble vidrio, amoblamientos de diseño en cocina, baños y habitaciones. Todos los ambientes cuentan con la pre instalación de aire acondicionado realizada.
La propiedad también incluye una galería con parrilla, lo que la convierte en un espacio funcional y versátil. La orientación este permite disfrutar de la luz natural durante gran parte del día, y el acceso a un garaje con capacidad para 2 vehículos semicubiertos añade un plus de comodidad.
El barrio ofrece un entorno seguro con vigilancia y una zona escolar cercana, lo que lo convierte en una opción ideal para familias.
Aire Acondicionado: No
Antigüedad: Estrenar
Apto Crédito Hipotecario: No
Cantidad de Ambientes: 4
Cloacas: Si
Cochera: 2
Financiación: No
Gas: Si
Luz Eléctrica: Si
Piscina: No
Superficie Cubierta m2: 152.00
Superficie Total m2: 357
Teléfono: No
Tiene Expensas: Si
Valor de Expensas: 96000
¿Aceptan Mascotas?: Si



















